![]()
自分だけの城
石垣の上に凛と佇む2階建ての物件。木に埋もれた上品な造りは、城壁の上の白い城にも見える。伊豆高原までの無料シャトルバスも出ていることも有り難い。定住を踏まえて検討できる、落ち着いた一軒家だ。
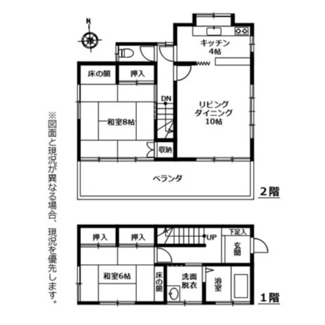
何より2LDKで温泉つきという物件がこの価格帯で手に入ってしまうなんて、都内近郊ではまず考えられない。しかもリフォームの必要がないくらいどの部屋も手入れが行き届いていて、築年数を感じさせない。
石垣だけでも相当な高さがあり、物件自体も底をだいぶ上げているため、1階からも2階からも眺めがいい。高台で眺望も良く光がたくさん射し込むリビング。木々が近く、窓を開けながら過ごすと気持ちが良さそうだ。
このままでも十分な造りだが、物件価格が安いからこそ、リフォームに挑戦してみたい。やや大胆ではあるが、2階の全ての壁を取り払ってしまい、広々としたスペースにしてしまうのも楽しいかもしれない。デザイナーに依頼し、世界にひとつしかない自分だけのデザインを作ってもらうのもいいだろう。
なお浴室は、石のグレーとタイルの水色、そして窓枠の黒がコントラストになり、外から入る光もあわせて、すこし芸術的な美しさを醸し出している。高台にあるため窓の外の視線も気にならない。温泉に浸かりながら森林浴のような景色を堪能できる。
城壁に囲まれた自分だけの城を、思う存分カスタマイズしてほしい。
EDITOR'S EYE
540万という破格の値段ながら、相当贅沢な造りです。階段からのアプローチがややありますが、これも味。灯りを点してこの部分のデザインもこだわってみたいものです。
PRICE & DATA
| 間取り | 2LDK |
|---|---|
| 価格 | 成約済み |
| 建物面積 | 23.04坪 |
| 土地面積 | 156.09坪 |
| 所在地 | 静岡県伊東市八幡野 |
|---|---|
| アクセス | 伊豆急【伊豆高原】駅より 4.7km |
| 地勢 | 傾斜地 |
| 製造規模 | 木造2階建 |
| 築年数 | 1981年8月年 |
| 温泉 | 権利付き |
| 眺望 | |
| 環境 | 閑静・別荘地 |
| 用途地域 | 無指定 |
| 都市計画 | 非線引き |
| 管理費等 | 4,200円/月(共益費) |
| 温泉使用料 | 3,675円(5t迄)/月 |
| 備考 | ・温泉保証金:800,000円 ・温泉名義変更料:105,000円 ・水道基本料金:1,785円(10t迄)/月 ・売主の瑕疵担保責任免除 ・伊豆高原駅まで、無料シャトルバス有り。 |
情報提供仲介業者
株式会社ミモ座リゾート静岡県伊東市八幡野1261-7
静岡県知事(1)12746号
取引業態:媒介










